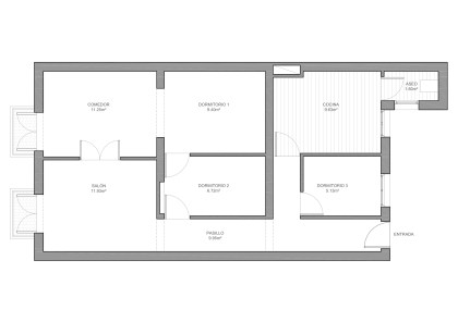
En esta vivienda a la venta en el barrio de la Latina, la distribución original de la casa responde al modo de vida clásico de la época. Salón y comedor en fachada, los dormitorios en la crujía central y sin ventilación, y los elementos de servicio al fondo de la casa, vinculados a un patio interior.

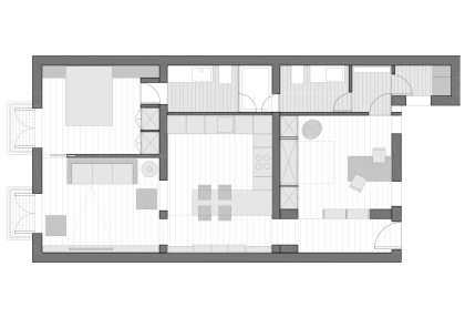
El cliente, dudaba de las posibilidades de una casa tan antigua a su modo de vida. Pero el proyecto transformó la antigua distribución de la vivienda en una configuración abierta y flexible, donde todos los espacios estaban convenientemente ventilados e iluminados, ajustándose a los requerimientos del cliente.
