Con una pequeña intervención, una antigua vivienda cercana a la Glorieta de Bilbao se actualizó para sacarla al mercado de alquiler.
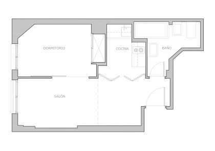
La reforma se centró en la renovación de la cocina y el baño y en la actualización de los acabados de la vivienda: solados, revestimientos y carpinterías.

Se modificó la distribución del baño para ceder espacio a la cocina, sustituyendo la bañera por una ducha, y se eliminó el tabique de separación entre la cocina y el salón, para conseguir mayor sensación de amplitud.

+ ver testimonio