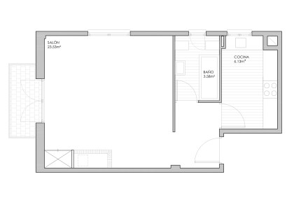
El proyecto surgió a partir de la necesidad de los propietarios de sacar el máximo partido a los metros existentes para poder dotar a la vivienda de un dormitorio independiente. De esta manera, Reubika transformó un estudio de 34m2 en un moderno apartamento después de una sencilla intervención.

Inicialmente, el estudio contaba con cocina, baño y salón-dormitorio. Con la nueva distribución, el nuevo dormitorio pasó a ocupar el espacio de la antigua cocina. Se reorganizó el baño y se independizaron ambas estancias del resto de la vivienda.

En el salón se proyectó una cocina, oculta tras unos paneles de madera, y se sustituyó la antigua chimenea por otra más moderna donde se proyectó una zona de almacenaje.
