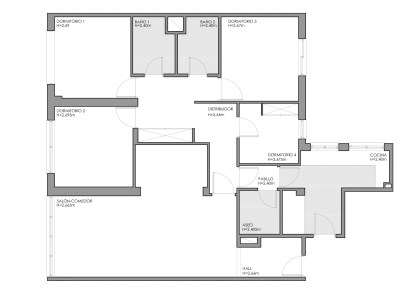
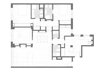
En este proyecto se llevó a cabo la reforma integral de una vivienda de 140m2 para adecuarla al modo de vida de los nuevos propietarios. La vivienda original contaba con cuatro dormitorios (uno de ellos de servicio), dos baños, un aseo, una pequeña cocina y salón comedor.

La premisa principal fue ampliar las zonas de día, cocina y salón comedor, e independizar los dos dormitorios, que se organizaron con baño en suite.
Se amplió la cocina para incluir una zona de office, y se eliminó uno de los dormitorios principales para proyectar un despacho-biblioteca comunicado con la zona de estar, aprovechando así las excelentes vistas del Retiro que tiene la vivienda.
